Architect and sustainability expert Caroline Pidcock and husband John McInerney, a former city of Sydney planner, say their three-bedroom apartment on Sydney’s Kent Street feels like a real home.
That’s not so unusual, but their unit was once part of Esso Australia’s head office. Resembling a typical 1970s rectangular block, it was unremarkable except for the lights of its giant Christmas tree that bounced across the harbour every December and into boomers’ memories of “back in the day”.
Highgate Apartments now, which has 205 apartments and more shape than when it was a rectangular office block. Credit: Peter Rae
Does this look home to you? The Esso block in 1992 before it was converted to apartments. Credit: Miller/Fairfax Media
When the couple moved into the block in 2019, the zeitgeist was changing, Pidcock said. “Six years ago, the importance of adapting existing buildings was really coming onto my radar. Now we are finally waking up to the importance of embodied carbon and how the biggest reductions come by design – such as reusing what we already have.”
Since then, awareness has grown that the building and construction sector is the largest emitter of greenhouse gases, accounting for 37 per cent of global emissions.
Highgate looks very different today. A $200 million shape-changing redevelopment turned some of the office block’s straight lines into curves to create 205 apartments with balconies.
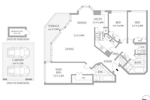
A floorplan of a similar apartment at the Highgate. Credit: Domain
It was the city’s first office-to-residential conversion in the CBD and the largest in Australia in the 1990s. After Highgate, other conversions followed, mostly older blocks with harbour views and smaller floor plates, according to the City of Sydney.
Now office-to-home conversions have virtually come to a stop because of rising building costs.
Some blocks approved for conversion have subsequently been demolished for a new build, said Alex Stuart, the director of research group Urbis.
To re-start them, Pidcock and Professor Philip Oldfield, head of the school of the built environment at the University of NSW, are among those calling for developers to be given financial incentives to encourage adaptive reuse.
Architect Caroline Pidcock and her husband, former Sydney city planner, John McInerney in their apartment at Highgate, which was converted from offices to housing 30 years ago. Credit: Peter Rae
As part of the Herald’s reviews of apartment life, prompted by the NSW government’s goal to promote high-density living as the solution to the lack of housing, we visited Highgate.
“We need policies and incentives that make adaptive reuse attractive and financially viable,” Oldfield said. Pidcock said they would recognise the benefits of carbon reduction, too.
Oldfield said the challenges to conversions were well known: many office buildings have deep floor plates, which make it difficult to provide the light and ventilation required under current apartment guidelines. Breaking through slabs to create new risers for plumbing was also difficult.
“But really, these are small challenges – there’s lots of vacant office buildings that could be easily redesigned into apartments. The biggest challenge that is stopping this from occurring is financial feasibility – costs can be as much as 20 per cent higher for an office-to-residential conversion than simply knocking down the office and creating a new building.”
Loading
McInerney, a former deputy lord mayor and councillor, recalled giving the developers a more generous floor space ratio as an incentive to encourage more people to live in the city.
Similar to the way the government rewards developers who include affordable housing by allowing additional height or space, Oldfield said councils could approve higher densities for buildings that lowered embodied carbon.
Adaptive reuse of office blocks would save about 40-60 per cent of the embodied carbon compared to a full demolish and rebuild, Oldfield said.
Eamon Waterford, the chief executive of the Committee for Sydney think tank, said office-to-residential conversions could energise under-performing precincts. But it was only suitable for buildings with smaller floor plates. “As a result, after some early excitement, we haven’t seen significant uptake of the opportunity.”
The pool and gym at Highgate. Credit: Peter Rae
Another driver of adaptive reuse could be what property developer CBRE forecasts as the great withdrawal. It forecasts 6 per cent of 241,336 square metres of office space in Sydney’s CBD – mostly on the fringes – could be withdrawn from the market over the next few years because of rising vacancy rates.
Architect Ingrid Bakker, a principal with Hassell, has been discussing the concept of a “carbon bonus” – a reward for keeping existing embodied carbon locked in – with the Victorian government.
“Everyone’s so keen for this,” Bakker said. “We’ve had so many good conversations locally with developers because not only is adaptive reuse great from a sustainability perspective, it often helps some of these bigger organisations with their corporate social responsibility requirements as well.”
“In London now, you can’t knock a building down unless you’ve got a really good reason. Adaptive reuse is the first option. The most sustainable building is the one that’s already built.”
Loading
City of Sydney Lord Mayor Clover Moore said conversions of offices faced the same feasibility challenges affecting residential development – steep increases in construction costs, higher interest rates, labour shortages and the withdrawal of international investors.
“Residential projects in the city centre tend to be high-end, so they are not going to be a silver bullet for the housing affordability crisis. Increasing the number of these projects in the CBD isn’t necessarily a panacea for vibrancy either, indeed there is often tension between increased nightlife and activation and residential amenity.”
The city prioritised environmental outcomes and sustainability but it was not currently looking to provide specific financial incentives.
In New York, the United States’ largest office-to-residential conversion has just been completed. It has 1000 new rental units and what The New York Times described as splashy amenities.
The SoMA tower at 25 Water Street in New York is the biggest office-to-residence conversion in the US.Credit: Bloomberg
More conversions are expected under the city’s new housing plan, City of Yes, to “breathe new life into our office districts and help address our housing shortage”. It would allow non-residential buildings to convert to dorms, or shared housing with common amenities.
Other countries were offering incentives, Oldfield said. The UK created another 100,000 homes in eight years by allowing developers who converted office spaces to bypass the usual space and performance standards. But concerns about quality resulted in a tightening of rules.
Loading
France was making progress with promises to create 45,000 new student homes in vacant offices. It had limits on embodied carbon emissions.
For Pidcock and McInerney, Highgate was a perfect place to live, with wide hallways and more lifts than usual thanks to its history as an office block.
They also believe it is the best-managed apartment block in Sydney. For McInerney, living there was a test of the policy he helped introduce at the City of Sydney in the 1990s. It gets a “big tick of approval”, he said.
Start the day with a summary of the day’s most important and interesting stories, analysis and insights. Sign up for our Morning Edition newsletter.
Most Viewed in National
Loading


















